Особняк: 2924
| Стоимость |
цена по запросу
|
Смоленский бульвар 24к3 |
||
| Метро | Смоленская | |
| Район | Арбат | |
| Адрес | Смоленский бульвар 24к3 | |
| Тип | Особняк | |
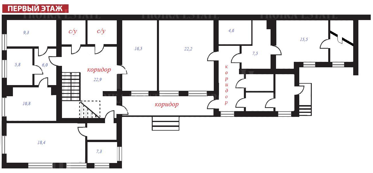
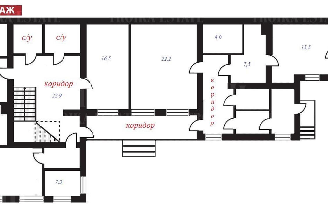
| Площадь | 291.5 м2 |
| Этаж | 2 / 2 |
| Готовность | под реконструкцию |
| Объект | ID:2924 |
| в избранное |
ОПИСАНИЕ
Продается двухэтажный особняк. Состояние здания - под реконструкцию. Высота потолков 3,4 м. Год постройки 1933г. Вторая линия Садового кольца. Закрытый двор. От метро Смоленская и Парк Культуры 8 минут пешком. Прямая продажа от собственника (юридическое лицо)




