Абрикосов
| Стоимость |
от
$1 945 855
от 151 096 000 |
| Стоимость за м2 | от 1 590 000 / $1 590 000 |
Потаповский пер-к 6 |
|
| Район: | Чистые пруды |
| Тип недвижимости: | Квартиры |
| Готовность: | Без отделки |
| Срок сдачи: | Сдан |
| Предложения | |
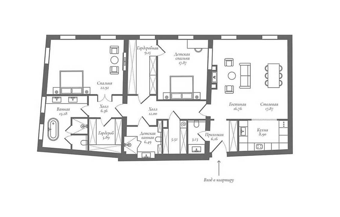
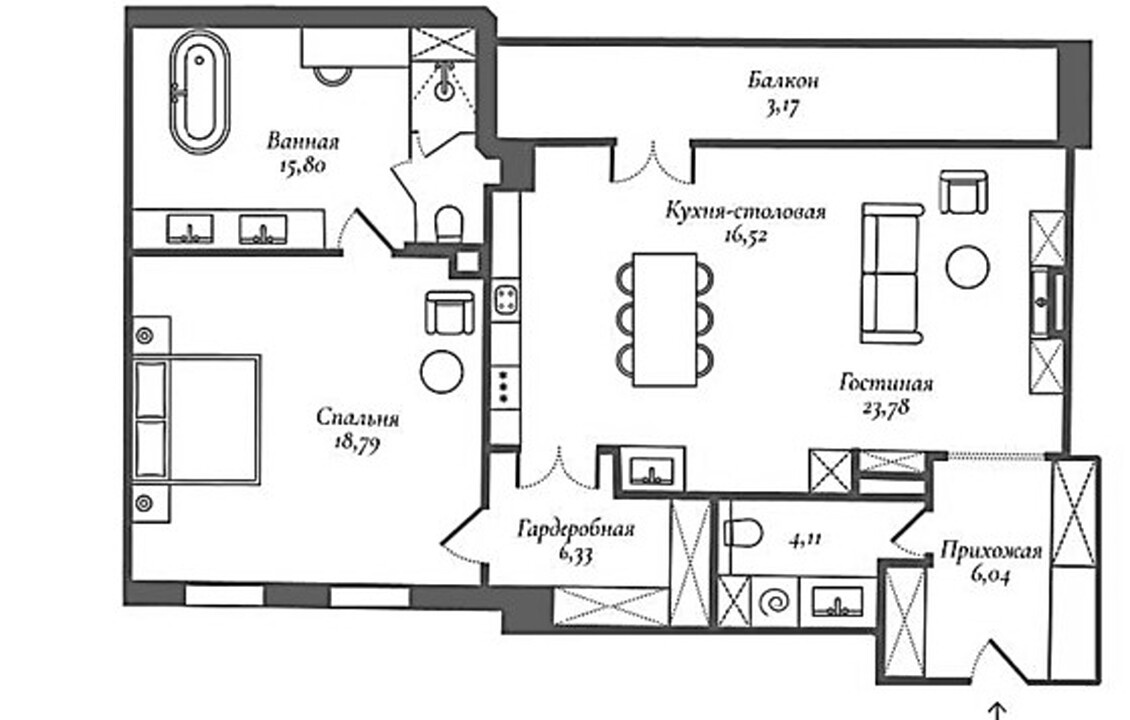
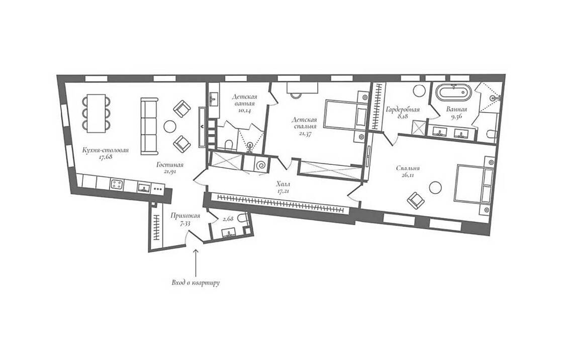
ОПИСАНИЕ
Особняк в Потаповском переулке – доходный дом 19 века после комплексной реконструкции.
В результате восстановительных работ реконструирован фасад дома, полностью воссозданы
планировочные решения квартир. В основе строения - каменные палаты XVII-XVIII
веков, которые впоследствии были выкуплены семьей фабрикантов Абрикосовых. Всего
в доме 27 квартир от 65 до 350 кв.м. Для каждой квартиры предусмотрено 2
машиноместа в паркинге и винный погреб. В квартирах установлены дровяные камины с отдельным дымоходом для
каждой квартиры и возможностью устройства канала для забора наружного воздуха с
фасада здания. Ультрасовременные технические решения позволяют ощущать
максимальный комфорт в классическом убранстве интерьеров дома. Продуманная во
всех деталях инженерия незаметно и надежно обеспечивает абсолютную
безопасность, приватность и домашний уют. Лифты компании Kone (Финляндия).
Отделка кабин по индивидуальному проекту.
